Home Introduction About us Services Contact Us
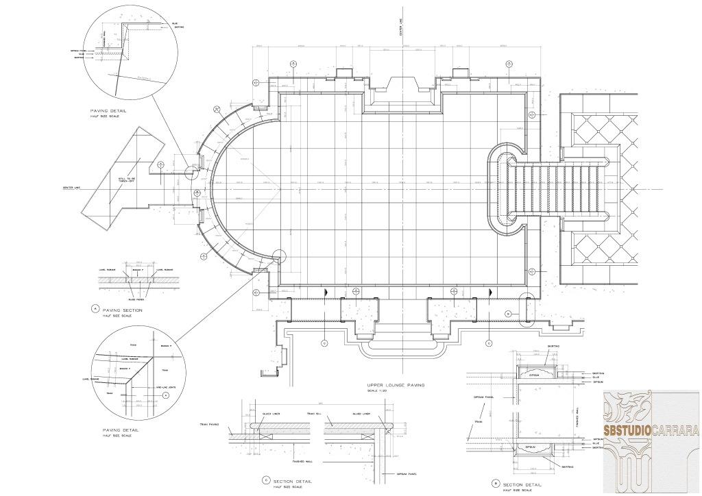
Eden_-_Disegno3Eden_-_Disegno2Eden_-_ingressoEden_-_scala_piccolaEden_-_bagno_Crystal3Eden_-_bagno_CrystalEden_-_bagno_Crystal2Eden_-_scala_grande2docEden_-_scala_grandePavimenti, scale interne, rivestimento bagni;

Tutti i marmi sono stati preposati in laboratorio e numerati seguendo i disegni .

Posa eseguita secondo i disegni tecnici e di concerto con gli architetturali ;

Home
Introduction
About us
Services
Contact Us
Contact Us Form
Inquiry Form
Feedback Form
St.Tropez
Prada Stockolm
Prada Montecarlo
Prada Almaty
Cap Ferrat
Hotel Eden Rome
Cildren H. Philadelphia
Meadowhall Shopping C.
Mohegan Sun
Red Rock (Las Vegas)
Omaha Performing Arts
Canary Wharf - London
bagno in Bianco Cremo
 PicsArt_09-02-03.25.49
 
Site Map